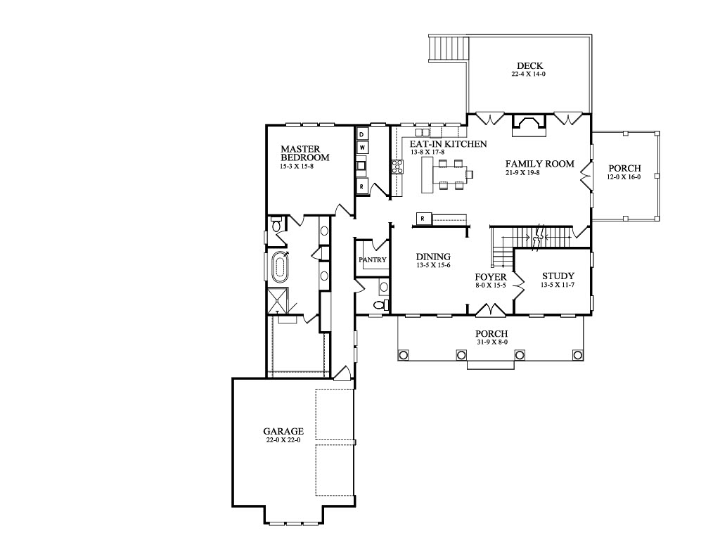
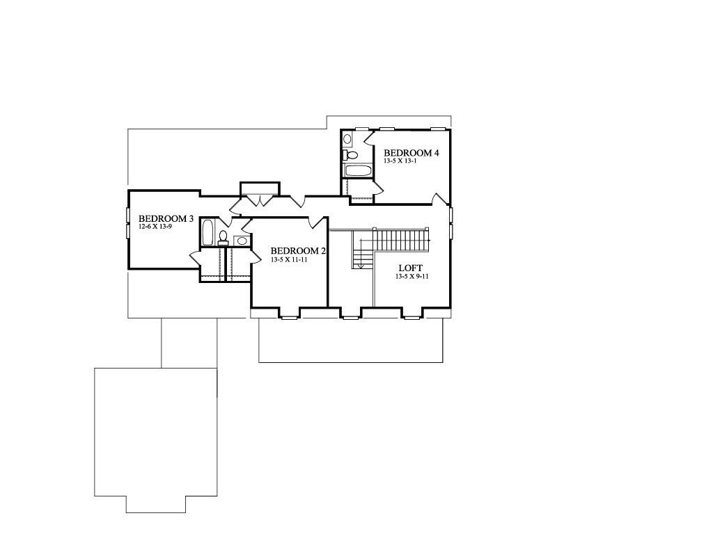
First Floor 2198 sq.ft. Second Floor 1184 sq.ft. Total Heated Square Feet 3382 sq.ft. Overall width 75-11 x 78-0 deep Foundations: Crawl and Basement Wall height 9-0 first floor, 9-0 second floor