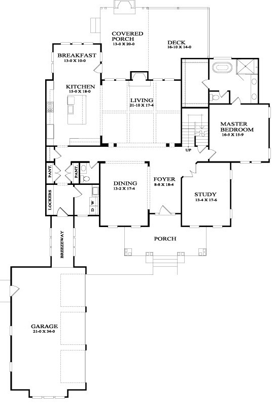
First Floor 2514 sq.ft.
Second Floor 1110 sq.ft.
Total (heated) 3624 sq.ft.
Foundations: Basement,Crawl and Slab
Wall Heights: 10'-0" first floor, 9-0" second floor
Overall Plan Dimensions 71-9" wide x 96'-6" deep

Back